Identifikator: 5288#TXzez

Raumhohe Fenster & Perfekte Anbindung am Kölner Gleisdreieck

Kontakt

Objekt melden

* Pflichtfelder

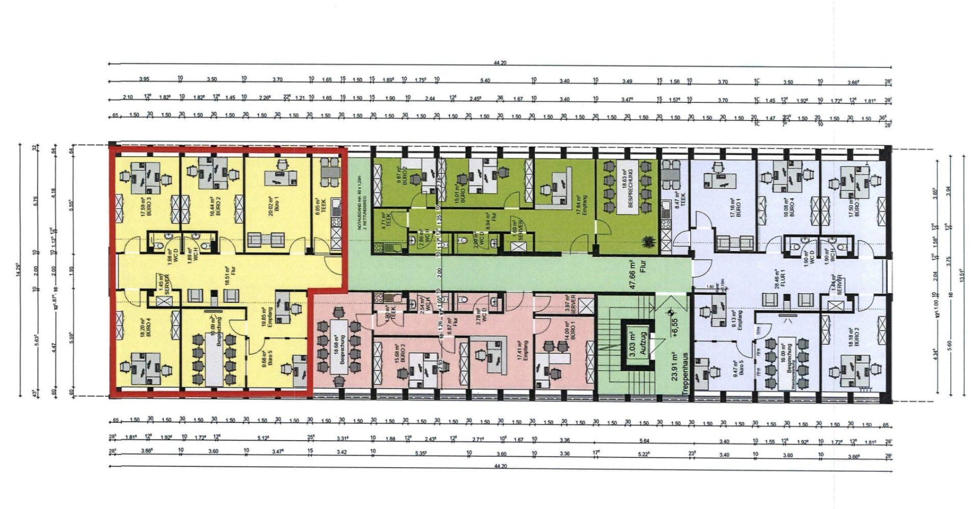
    • Flur
    • Besprechungsraum
    • Sanitär
    • Büro
    • Gruppenbüro
    • Einzelbüro
    • Doppelbüro
    • Treppenhaus
    • Büro mit großen Fensterflächen
    • Flurbereich
    • Grundrissplan 3.OG

Preise & Kosten

Mietpreis pro m² 12,50 €
Nebenkosten von 3,10 €
Mieter-Provision Ja
Provisionshinweis provisionspflichtig, siehe Allgemeine Geschäftsbedingungen

Größe & Zustand

Bürofläche184 m²
Zustand des ObjektesNach Vereinbarung
PrimärenergieträgerGas
GebäudeartGewerbeimmobilie

Ausstattung

Stellplatzart
Freiplatz
Heizungsart
Zentralheizung
Befeuerung
Gas
Aufzug
Personenaufzug
Räume veränderbar
DV-Verkabelung
Barrierefrei

Objektbeschreibung

Das ehemals von Mercedes-Benz genutzte Verwaltungsgebäude verfügt über eine attraktive Fassadengestaltung. Die Büroetagen über einem Fitnessstudio wurden vor einigen Jahren kernsaniert und sind in hervorragendem Zustand. Die vakante Mietfläche mit ca. 100 m² befindet sich im 5. OG und ist mit einem PVC-Designboden ausgestattet und verfügt derzeit über drei Räume mit einem Empfangsbereich. Stellplätze können in ausreichender Zahl vor dem Gebäude angemietet werden.

Lage

- Stadtteil: Neuehrenfeld

- Nahversorgung: Kiosk, Imbiß, Restaurant

- Fußweg öffentl. Verkehr: 7 min

- Fahrzeit Autobahn: 2 min

- Fahrzeit Hauptbahnhof: 5 min

- Fahrzeit Flughafen: 20 min

- Straßenbahn: Linie 5, Haltestelle Gutenbergstraße

- Autobahn: A57 Richtung Düsseldorf, Anbindung an A1 (Kreuz Köln Nord)

Sonstiges

Sie haben noch nicht das richtige gefunden? Sprechen Sie uns an und lassen Sie uns die Arbeit machen. Gemeinsam finden wir Ihre Wunschimmobilie und beraten Sie gerne bei Ihrer Anmietung.

Der guten Ordnung halber, möchten wir Sie darauf aufmerksam machen, dass im Falle eines Vertragsabschlusses, bei nicht als provisionsfrei gekennzeichneten Objekten eine laufzeitabhängige Provision zzgl. gesetzlicher Umsatzsteuer gemäß unserer Allgemeinen Geschäftsbedingungen für Sie als Auftraggeber fällig wird. Die Höhe der Provision können Sie unter www.dgi-koeln.de einsehen.

Wir möchten Sie darüber informieren, dass seit dem 01. Mai 2014 die zweite Verordnung zur Änderung der Energieeinsparverordnung ihre Gültigkeit erlangt hat. Nach den Paragraphen 16 und 16a EnEV sind die Vermieter/Verkäufer bei der Vermarktung von Immobilien dazu verpflichtet, den Energieausweis der Immobilie auszuhändigen und die energetischen Kennwerte mit in die Inserate aufzunehmen. Bei all unseren inserierten Immobilien haben wir die Vermieter/ Verkäufer nachweislich darauf aufmerksam gemacht und die erforderlichen Energieausweise angefordert.

Adresse

50823 Köln