Identifikator: 5606#TXzez

Büroflächen im "RheinAtrium" zu vermieten

Kontakt

Objekt melden

* Pflichtfelder

    • Eckbüro
    • Eckbüro
    • Büro
    • Empfang/ Küche
    • Büro
    • Büro
    • Empfang/ Küche
    • Büro
    • Büro
    • Büro
    • Büro
    • Büro
    • Büro
    • Büro
    • Ausblick
    • Ausblick
    • Büro
    • Büro
    • Büro
    • Büro
    • Außenansicht
    • Außenansicht
    • Parkhaus
    • Parkhaus
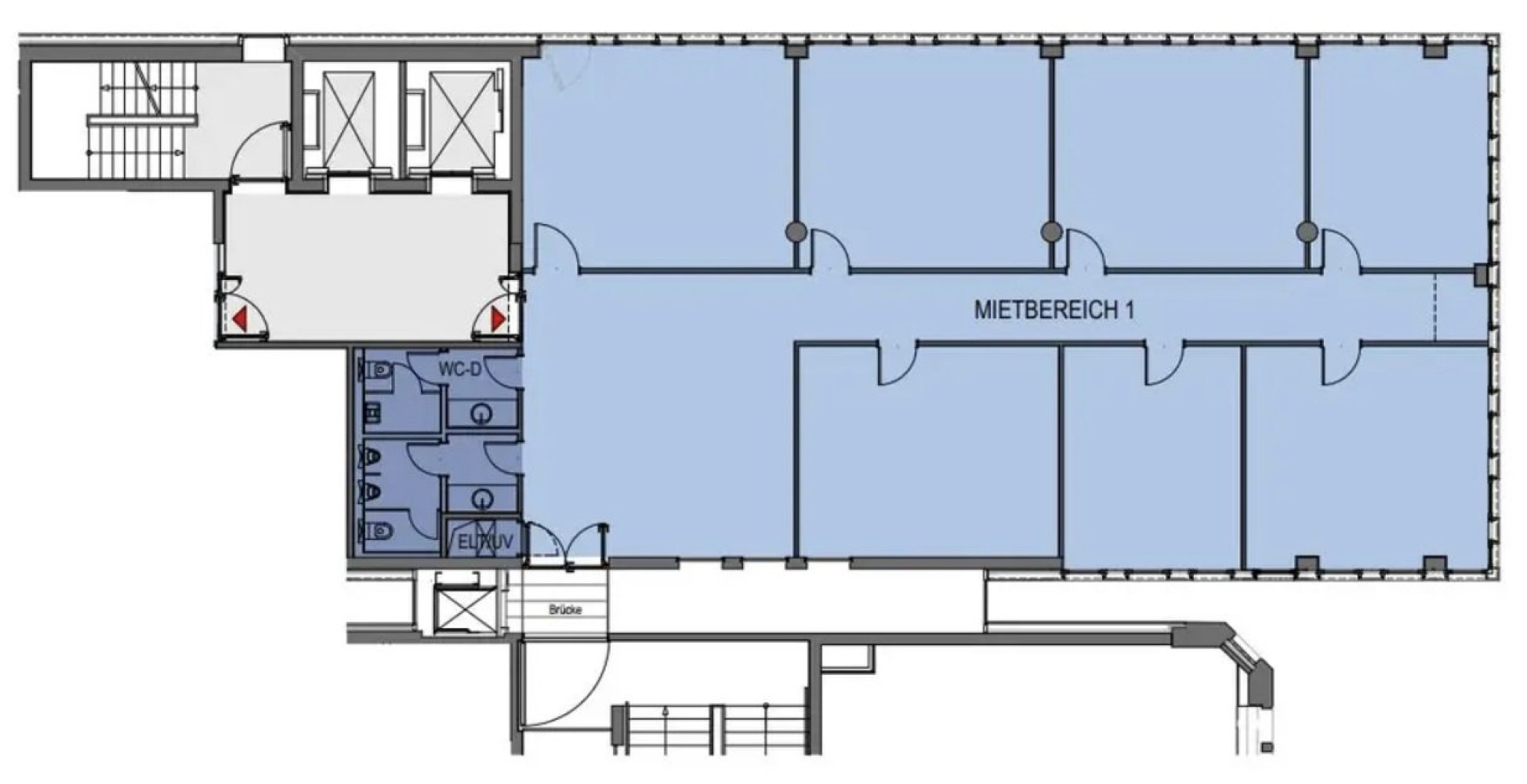
    • Grundrissplan
    • Grundrissplan

Preise & Kosten

Mietpreis pro m² 17,35 €
Nebenkosten von 3,50 €
Anzahl Freiplatz 84
Mieter-Provision Ja
Provisionshinweis provisionspflichtig, siehe Allgemeine Geschäftsbedingungen

Größe & Zustand

Bürofläche269 m²
Anzahl Stellplätze84
Baujahr1913
Zustand des ObjektesVollsaniert
EnergieausweisVerbrauch
Stromverbrauchskennwert kWh/(·a)1010.00
Heizenergie­verbrauchs­kennwert kWh/(·a)820.00
PrimärenergieträgerFernwärme
Baujahr lt. Energieausweis1913
GebäudeartGewerbeimmobilie

Energieausweis

Gebäudeart
Gewerbeimmobilie
Energieausweis Art
Verbrauch
Baujahr lt. Energieausweis
1913
Primärenergieträger
Fernwärme
Stromverbrauchskennwert kWh/(·a)
1010.00
Heizenergie­verbrauchs­kennwert kWh/(·a)
820.00

Ausstattung

Stellplatzart
Tiefgarage
Heizungsart
Zentralheizung
Befeuerung
Fernwärme
Aufzug
Personenaufzug
Räume veränderbar
DV-Verkabelung
Barrierefrei

Objektbeschreibung

Das exklusive Bürogebäude am Rhein befindet sich in Hauptbahnhofnähe und wurde in 2006 errichtet. Die vakante Büroeinheit verfügt über eine moderne Büroausstattung. Ein großzügig angelegter Innenhof sorgt für eine natürliche und angenehme Belichtung und lädt zum verweilen ein. Die Grundrisse sind variabel und können bei Bedarf an die Bedürfnisse des Mieters angepasst werden. Das Gebäude verfügt über eine objekteigene Tiefgarage in der Stellplätze angemietet werden.

Lage

- Stadtteil: Altstadt-Nord

- Nahversorgung: Restaurants, Bistros, Geschäfte des täglichen Bedarfs

- Fußweg öffentl. Verkehr: 2 min.

- Fahrzeit Autobahn: 5 min.

- Fahrzeit Hauptbahnhof: 2 min.

- Fahrzeit Flughafen: 25 min.

- Straßenbahn: Linien 5, 16, und 18 Haltestelle HBF Dom

- S-Bahn: 6, 11, 12, 13 Haltestelle HBF Dom

- Bus: Linien 16, 18, 132, 133 Breslauer Platz

- Regional- und Fernverkehr: RB 25, RE 1, IC ICE

- Autobahn: A57 Richtung Düsseldorf, Anbindung an A1 (Kreuz Köln Nord) Koblenz und Dortmund

Sonstiges

Sie haben noch nicht das richtige gefunden? Sprechen Sie uns an und lassen Sie uns die Arbeit machen. Gemeinsam finden wir Ihre Wunschimmobilie und beraten Sie gerne bei Ihrer Anmietung.

Der guten Ordnung halber, möchten wir Sie darauf aufmerksam machen, dass im Falle eines Vertragsabschlusses, bei nicht als provisionsfrei gekennzeichneten Objekten eine Provision zzgl. gesetzlicher Umsatzsteuer gemäß unserer Allgemeinen Geschäftsbedingungen für Sie als Auftraggeber fällig wird. Die Höhe der Provision können Sie unter www.dgi-koeln.de einsehen.

Adresse

50668 Köln