Büro/Praxis, Miete, Köln
Hier sind Sie genau richtig! Hochwertiges Hochhaus auf der Schanzenstraße

Hier sind Sie genau richtig! Hochwertiges Hochhaus auf der Schanzenstraße

Objektbeschreibung

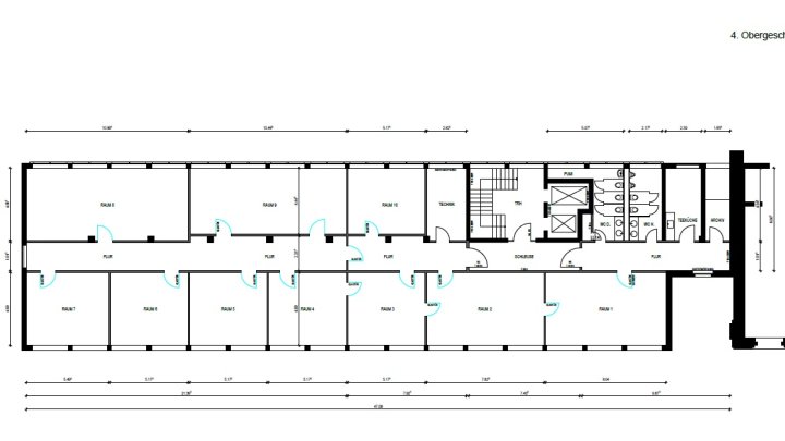
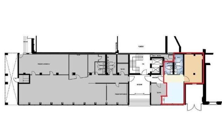
Das in Mülheim befindliche Bürohochhaus ist in einem hervorragenden Zustand. Die Büroetagen sind hochwertig mit Parkettboden, CAT 7 Verkabelung und teilweise Klimaanlage ausgestattet. Aktuell steht im EG eine kleine Fläche zur Anmietung zur Verfügung und im 3./4. und 5.OG jeweils eine Etage. Die Büroflächen können in Abstimmung mit dem Eigentümer an die Bedürfnisse des neuen Mieters angepasst werden und die Raumaufteilung verändert werden. Stellplätze stehen auf dem Gelände zur Anmietung zur Verfügung.

Lage

- Stadtteil: Schanzenstraße

- Nahversorgung: Restaurants, Imbiß, Geschäfte des täglichen Bedarfs

- Fußweg öffentl. Verkehr: 5 min

- Fahrzeit Autobahn: 4 min

- Fahrzeit Hauptbahnhof: 10 min

- Fahrzeit Flughafen: 15 min

- Straßenbahn: Linien 4, Haltestelle Keupstraße

- Bus: Linien 151, 152, 153, 190, 250, 260, 434,

- Autobahn: A3 Richtung Oberhausen und Frankfurt am Main, A4 Richtung Gummersbach, Olpe

Sonstiges

Der Mietpreis liegt zwischen 16,00 €/m² und 16,50 €/m² und richtet sich nach der Länge der Vertragslaufzeit, Lage im Objekt und der Ausstattung wie Kühlung der Fläche im Objekt.



Sie haben noch nicht das richtige gefunden? Sprechen Sie uns an und lassen Sie uns die Arbeit machen. Gemeinsam finden wir Ihre Wunschimmobilie und beraten Sie gerne bei Ihrer Anmietung.



Der guten Ordnung halber, möchten wir Sie darauf aufmerksam machen, dass im Falle eines Vertragsabschlusses, bei nicht als provisionsfrei gekennzeichneten Objekten eine laufzeitabhängige Provision zzgl. gesetzlicher Umsatzsteuer gemäß unserer Allgemeinen Geschäftsbedingungen für Sie als Auftraggeber fällig wird. Die Höhe der Provision können Sie unter www.dgi-koeln.de einsehen.

Angaben zur Immobilie

Objektart
Bürofläche
Bürofläche
1.817 m²
teilbar ab
270 m²
Baujahr
1925
Zustand des Objektes
Neuwertig
Verfügbar ab
kurzfristig bzw. nach Vereinbarung

Energieausweis

Energieverbrauchskennwert
247.4 kWh / (a·m²)
0
>250
Gebäudeart
Gewerbeimmobilie
Energieausweis
Verbrauch
Energieverbrauchskennwert
247.4
Baujahr lt. Energieausweis
1925
Stromverbrauchskennwert kWh/(·a)
1144.00
Heizenergie­verbrauchs­kennwert kWh/(·a)
230.00

Ausstattung

Räume veränderbar
Heizungsart
Zentralheizung
Klimatisiert
Aufzug
Personenaufzug
Stellplatzart
Freiplatz
DV-Verkabelung

16,- € (m²)

Mietpreis pro m²

270 m²

teilbar ab

Adresse

51063 Köln

Preise & Kosten

Mieter-Provision
Ja
Provisionshinweis
provisionsfrei für den Mieter
Mietpreis pro m²
16,- € (m²)
Nebenkosten von
3,50 €

Bilder

Hier sind Sie genau richtig! Hochwertiges Hochhaus auf der Schanzenstraße
Hier sind Sie genau richtig! Hochwertiges Hochhaus auf der Schanzenstraße
Hier sind Sie genau richtig! Hochwertiges Hochhaus auf der Schanzenstraße
Hier sind Sie genau richtig! Hochwertiges Hochhaus auf der Schanzenstraße
Hier sind Sie genau richtig! Hochwertiges Hochhaus auf der Schanzenstraße
Hier sind Sie genau richtig! Hochwertiges Hochhaus auf der Schanzenstraße
Hier sind Sie genau richtig! Hochwertiges Hochhaus auf der Schanzenstraße
Hier sind Sie genau richtig! Hochwertiges Hochhaus auf der Schanzenstraße
Hier sind Sie genau richtig! Hochwertiges Hochhaus auf der Schanzenstraße
Hier sind Sie genau richtig! Hochwertiges Hochhaus auf der Schanzenstraße
Hier sind Sie genau richtig! Hochwertiges Hochhaus auf der Schanzenstraße
Hier sind Sie genau richtig! Hochwertiges Hochhaus auf der Schanzenstraße
Hier sind Sie genau richtig! Hochwertiges Hochhaus auf der Schanzenstraße
Hier sind Sie genau richtig! Hochwertiges Hochhaus auf der Schanzenstraße
Hier sind Sie genau richtig! Hochwertiges Hochhaus auf der Schanzenstraße
Hier sind Sie genau richtig! Hochwertiges Hochhaus auf der Schanzenstraße
Hier sind Sie genau richtig! Hochwertiges Hochhaus auf der Schanzenstraße
Hier sind Sie genau richtig! Hochwertiges Hochhaus auf der Schanzenstraße
Hier sind Sie genau richtig! Hochwertiges Hochhaus auf der Schanzenstraße
Hier sind Sie genau richtig! Hochwertiges Hochhaus auf der Schanzenstraße
Hier sind Sie genau richtig! Hochwertiges Hochhaus auf der Schanzenstraße
Hier sind Sie genau richtig! Hochwertiges Hochhaus auf der Schanzenstraße
Hier sind Sie genau richtig! Hochwertiges Hochhaus auf der Schanzenstraße
Hier sind Sie genau richtig! Hochwertiges Hochhaus auf der Schanzenstraße
Hier sind Sie genau richtig! Hochwertiges Hochhaus auf der Schanzenstraße
Hier sind Sie genau richtig! Hochwertiges Hochhaus auf der Schanzenstraße
Hier sind Sie genau richtig! Hochwertiges Hochhaus auf der Schanzenstraße
Hier sind Sie genau richtig! Hochwertiges Hochhaus auf der Schanzenstraße