Büro/Praxis, Miete, Köln
Schickes Bürogebäude zu fairen Preisen am Ring

Schickes Bürogebäude zu fairen Preisen am Ring

Objektbeschreibung

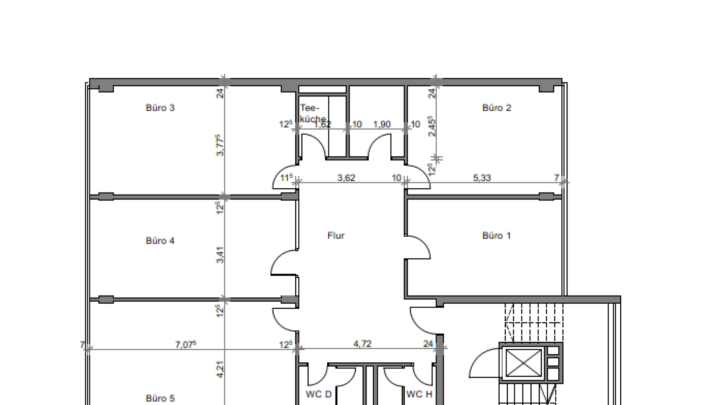
Das Bürogebäude am beliebten Kaiser-Wilhelm-Ring wurde 1972 erbaut und verfügt über mehrere Büroetagen, die über das modernisierte Treppenhaus und den Personenaufzug erreichbar sind. Das vakante Büro verfügt über 5 Räume und ist zum Teil mit Glaswänden ausgestattet. Stellplätze können im öffentlichen Parkhaus vor dem Gebäude angemietet werden.

Lage

- Stadtteil: Belgisches Viertel

- Nahversorgung: Restaurants, Bistros,

Geschäfte des täglichen Bedarfs

- Fußweg öffentl. Verkehr: 4 min.

- Fahrzeit Autobahn: 6 min.

- Fahrzeit Hauptbahnhof: 5 min.

- Fahrzeit Flughafen: 25 min.

- Straßenbahn: Linie 12,15

Haltestelle Christophstraße/ Mediapark;

Linie 3, 4, 5, 12,15 Haltestelle Friesenplatz

- Autobahn: A57 Richtung Düsseldorf

Anbindung an A1 (Kreuz Köln Nord)

Sonstiges

Sie haben noch nicht das richtige gefunden? Sprechen Sie uns an und lassen Sie uns die Arbeit machen. Gemeinsam finden wir Ihre Wunschimmobilie und beraten Sie gerne bei Ihrer Anmietung.



Der guten Ordnung halber, möchten wir Sie darauf aufmerksam machen, dass im Falle eines Vertragsabschlusses, bei nicht als provisionsfrei gekennzeichneten Objekten eine laufzeitabhängige Provision zzgl. gesetzlicher Umsatzsteuer gemäß unserer Allgemeinen Geschäftsbedingungen für Sie als Auftraggeber fällig wird. Die Höhe der Provision können Sie unter www.dgi-koeln.de einsehen.

Angaben zur Immobilie

Objektart
Bürofläche
Bürofläche
334 m²
teilbar ab
167 m²
Baujahr
1972
Zustand des Objektes
Vollsaniert
Verfügbar ab
kurzfristig bzw. nach Vereinbarung

Energieausweis

0
>250
Endenergiebedarf
54.0 kWh/(a·m²)
Gebäudeart
Gewerbeimmobilie
Energieausweis
Bedarf
Endenergiebedarf
54.0
Baujahr lt. Energieausweis
1972
Primärenergieträger
Fernwärme
Stromverbrauchskennwert kWh/(·a)
300.00
Heizenergie­verbrauchs­kennwert kWh/(·a)
1560.00

Ausstattung

Räume veränderbar
Heizungsart
Zentralheizung
Befeuerung
Fernwärme
Aufzug
Personenaufzug
Stellplatzart
Tiefgarage
Barrierefrei
DV-Verkabelung

15,90 € (m²)

Mietpreis pro m²

167 m²

teilbar ab

Adresse

50672 Köln

Preise & Kosten

Mieter-Provision
Ja
Provisionshinweis
provisionspflichtig, siehe Allgemeine Geschäftsbedingungen
Mietpreis pro m²
15,90 € (m²)
Nebenkosten von
3,30 €

Bilder

Schickes Bürogebäude zu fairen Preisen am Ring
Schickes Bürogebäude zu fairen Preisen am Ring
Schickes Bürogebäude zu fairen Preisen am Ring
Schickes Bürogebäude zu fairen Preisen am Ring
Schickes Bürogebäude zu fairen Preisen am Ring
Schickes Bürogebäude zu fairen Preisen am Ring
Schickes Bürogebäude zu fairen Preisen am Ring
Schickes Bürogebäude zu fairen Preisen am Ring
Schickes Bürogebäude zu fairen Preisen am Ring
Schickes Bürogebäude zu fairen Preisen am Ring
Schickes Bürogebäude zu fairen Preisen am Ring
Schickes Bürogebäude zu fairen Preisen am Ring