Büro/Praxis, Miete, Köln
Hagencampus; hochwertige Bürofläche mit Kühlung und Terrasse

Hagencampus; hochwertige Bürofläche mit Kühlung und Terrasse

Objektbeschreibung

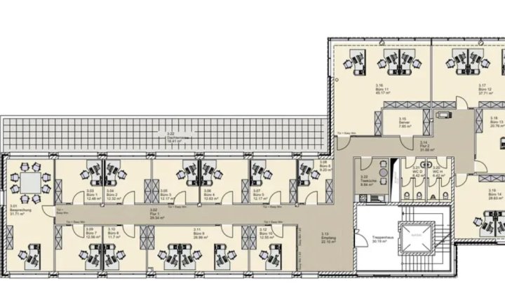
Das Gebäude im hagen_campus wurde 2006 errichtet und befindet sich in einem guten Zustand auf heutigem Niveau. Die vakante Mieteinheit verfügt aktuell über ca. 9 abgeschlossene Büroräume, einen Empfangsbereich, einen offenen Bereich und einer Küche mit Aufenthaltsbereich. Das Büro kann bei Bedarf individuell ausgebaut und renoviert werden. Stellplätze können optional auf dem Gelände angemietet werden.

Lage

- Stadtteil: Kalk

- Nahversorgung: Restaurants, Bistros, Geschäfte des täglichen Bedarfs

- Fußweg öffentl. Verkehr: 5 min

- Fahrzeit Autobahn: 3 min

- Fahrzeit Hauptbahnhof: 10 min

- Fahrzeit Flughafen: 20 min

- Bus: Linie 159

- S-Bahn: S12, 13

- Regionalverkehr: RB 25

- Autobahn: A559 Richtung Bonn

Anbindung: A4 Richtung Köln-Ost und A3 Richtung Frankfurt am Main und Oberhausen

Sonstiges

Sie haben noch nicht das richtige gefunden? Sprechen Sie uns an und lassen Sie uns die Arbeit machen. Gemeinsam finden wir Ihre Wunschimmobilie und beraten Sie gerne bei Ihrer Anmietung.



Der guten Ordnung halber, möchten wir Sie darauf aufmerksam machen, dass im Falle eines Vertragsabschlusses, bei nicht als provisionsfrei gekennzeichneten Objekten eine laufzeitabhängige Provision zzgl. gesetzlicher Umsatzsteuer gemäß unserer Allgemeinen Geschäftsbedingungen für Sie als Auftraggeber fällig wird. Die Höhe der Provision können Sie unter www.dgi-koeln.de einsehen.

Angaben zur Immobilie

Objektart
Bürofläche
Bürofläche
427 m²
Baujahr
2006
Zustand des Objektes
Nach Vereinbarung
Verfügbar ab
kurzfristig bzw. nach Vereinbarung

Energieausweis

Energieverbrauchskennwert
86 kWh / (a·m²)
0
>250
Gebäudeart
Gewerbeimmobilie
Energieausweis
Verbrauch
Energieverbrauchskennwert
86
Baujahr lt. Energieausweis
2006
Primärenergieträger
Gas
Stromverbrauchskennwert kWh/(·a)
190.00
Heizenergie­verbrauchs­kennwert kWh/(·a)
670.00

Ausstattung

Räume veränderbar
Heizungsart
Zentralheizung
Befeuerung
Gas
Klimatisiert
Barrierefrei
DV-Verkabelung

16,- € (m²)

Mietpreis pro m²

Adresse

51105 Köln

Preise & Kosten

Mieter-Provision
Ja
Provisionshinweis
provisionspflichtig, siehe Allgemeine Geschäftsbedingungen
Mietpreis pro m²
16,- € (m²)
Nebenkosten von
3,25 €

Bilder

Hagencampus; hochwertige Bürofläche mit Kühlung und Terrasse
Hagencampus; hochwertige Bürofläche mit Kühlung und Terrasse
Hagencampus; hochwertige Bürofläche mit Kühlung und Terrasse
Hagencampus; hochwertige Bürofläche mit Kühlung und Terrasse
Hagencampus; hochwertige Bürofläche mit Kühlung und Terrasse
Hagencampus; hochwertige Bürofläche mit Kühlung und Terrasse
Hagencampus; hochwertige Bürofläche mit Kühlung und Terrasse